首页 >> 产品中心 >> QD型16/3.2t

QD型16/3.2t

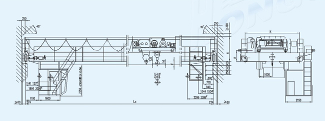
    QD型16/3.2t吊钩桥式起重机
     
    QD型16/3.2t吊钩桥式起重机技术参数
     
    工作级别
    A5
    A6
    起重量
    t
    16/3.2
    跨度
    m
    10.5
    13.5
    16.5
    19.5
    22.5
    25.5
    28.5
    31.5
    10.5
    13.5
    16.5
    19.5
    22.5
    25.5
    28.5
    31.5
    起升高度
    m
    6、8、10、12、14、16
    6、10、12、14、16、18
    速度
    主起升
    m/min
    9.5
    13
    副起升
    18.5
    18.5
    小车运行
    44.2
    44.2
    大车运行
    74
    87
    电动机
    主起升
    型号/功率
    YZR225M-8/22kw
    YZR250M1-6/37kw
    副起升
    YZR160L-6/11kw
    YZR160L-6/11kw
    小车运行
    YZR132M2-6/3.7kw
    YZR132M2-6/3.7kw
    大车运行
    YZR160M1-6/2×5.5kw
    YZR160M2-6/2×7.5kw
    主要尺寸(mm)
    B
    5860
    6260
    5860
    6260
    K
    4200
    4600
    4200
    4600
    H
    2058
    2061
    2064
    2067
    2070
    2073
    2076
    2079
    2058
    2061
    2064
    2067
    2070
    2073
    2076
    2079
    A
    821
    821
    h1
    632
    632
    F
    28
    148
    278
    428
    578
    728
    828
    978
    28
    148
    278
    428
    578
    728
    828
    978
    最大轮压
    kN

    145

    150
    162
    170
    181
    190
    196
    205
    147
    152
    164
    172
    183
    192
    198
    207
    荐用大车钢轨
    38kg/m、43kg/m、50kg/m、60×60、70×70、80×80、100×100
    电源
    三相交流380V 50HZ