网站首页
公司简介
产品中心
主要产品
企业实力
新闻中心
联系我们
首页
>>
产品中心
>>
QC型电磁桥式…
LD型电动单梁…
LH型电动葫芦…
MH型电动葫芦…
MHB型电动葫芦…
QD型吊钩桥式…
QZ型5t抓斗桥…
QC型电磁桥式…
QDY型吊钩桥式…
YZ型冶金起重…
MDG型单主梁门…
MG型双梁门式…
MGB型双梁半门…
返回分类
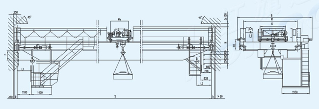
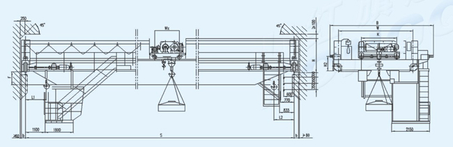
QC型电磁桥式起重机
QC型5t、10t
check
QC型20/5t
check
QC型32/5t
check
QC型16/3.2t-32/5t
check
«
‹
1
›
»