首页 >> 产品中心 >> YZ型冶金起重…

YZ型冶金起重机

          YZ型冶金起重机是依靠厂房轨道方向的纵向移动,小车的横向移动和吊钩的升降运动来进行工作,适用于金属冶炼车间,吊运熔融金属的专用起重机。YZ型冶金起重机主要有桥架,大车运行机构,小车和电气设备等组成。其工作级别分为A7,环境工作温度为-10~60℃。
     
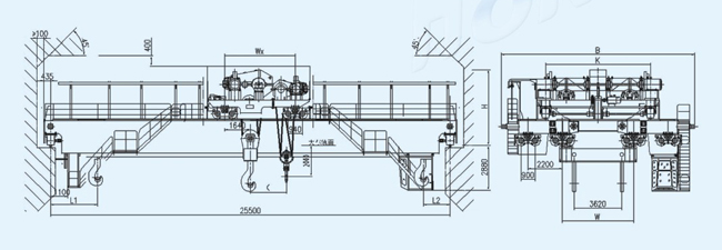
    YZ型75/20t、80/16t冶金起重机
     
    YZ型75/20t、80/16t冶金起重机技术参数
     
    起重量
    t
    75/20
    80/16
    跨度
    m
    19
    25
    起升高度
    主起升
    m
    20
    20
    副起升
    22
    22
    工作级别
    A7
    速度
    主起升
    m/min
    8.17
    7
    副起升
    8.73
    9.75
    小车运行
    43
    41.13
    大车运行
    81.9
    76.8
    电动机
    主起升
    型号/功率
    YZR400L1-10H/132kw
    YZR355L2-10H/132kw
    副起升
    YZR280S-8H/37kw
    YZR250M1-6H/30kw
    小车运行
    YZR250M-6H/18.5kw
    YZR200L-6H/15kw
    大车运行
    YZR250M1-6H/2×25kw
    YZR225M-6H/2×22kw
    主要尺寸(mm)
    B
    10874
    9730
    K
    5400
    4200
    W
    5400
    4200
    Wx
    3500
    2920
    H
    4350
    4054
    C
    1450
    1350
    L1
    2600
    2230
    L1
    1600
    2800
    起重机总重
    t
    124
    123
    最大轮压
    kN
    375
    385
    荐用大车钢轨
    QU100
    电源
    三相交流380v 50Hz
          YZ型冶金起重机是依靠厂房轨道方向的纵向移动,小车的横向移动和吊钩的升降运动来进行工作,适用于金属冶炼车间,吊运熔融金属的专用起重机。YZ型冶金起重机主要有桥架,大车运行机构,小车和电气设备等组成。其工作级别分为A7,环境工作温度为-10~60℃。
     
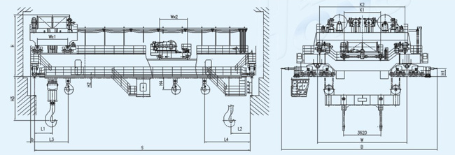
    YZ型100/30t~150/30t冶金起重机
     
    YZ型100/30t~150/30t冶金起重机技术参数
     
    起重量
    t
    100/30
    125/30
    140/32
    150/30
    跨度
    m
    19
    22
    22
    23
    起升高度
    主起升
    m
    21
    21
    19
    15
    副起升
    22
    22
    20
    18
    工作级别
    A7
    速度
    主起升
    m/min
    7.5
    5.08
    4
    44
    副起升
    8.85
    8.74
    9
    8.2
    主小车运行
    35.4
    35.4
    32.9
    34.7
    副小车运行
    42
    42
    42.6
    41.4
    起重机运行
    73
    72.68
    73
    72.68
    电动机
    主起升
    型号/功率
    YZR355L2-10/2×132kw
    YZR355L2-10/2×132kw
    YZR355L2-10/2×132kw
    YZR355L2-10/2×132kw
    副起升

    YZR315S-8/75kw

    YZR315S-8/75kw
    YZR315S-8/75kw
    YZR315S-8/55kw
    主小车运行
    YZR180L-8/2×11kw
    YZR200L-8/2×15kw
    YZR180L-8/2×11kw
    YZR180M1-8/2×15kw
    副小车运行
    YZR160M2-6/2×7.5kw
    YZR160M2-6/2×7.5kw
    YZR160M2-6/2×7.5kw
    YZR160M2-6/2×7.5kw
    起重机运行
    YZR250M1-8/4×37kw
    YZR250M1-8/4×37kw
    YZR250M1-8/4×15kw
    YZR250M1-8/4×15kw
    主要尺寸(mm)
    B
    15220
    15220
    11800
    13900
    K1
    9500
    9500
    7000
    7000
    K2
    2200
    2200
    2400
    2400
    W
    9700
    9700
    7000
    8600
    W×1
    3000
    3000
    3225
    3240
    W×2
    3040
    3040
    1750
    2000
    H
    5200
    5200
    5066
    5122
    H1
    1350
    1350
    1050
    1200
    H2
    258
    410
    537
    410
    H3
    3950
    3950
    4300
    4000
    H4
    1095
    1095
    1351
    1127
    L1
    2200
    2200
    2450
    2150
    L2
    1700
    1700
    2250
    2450
    L3
    1700
    2050
    1200
    2000
    L4
    1290
    1500
    2455
    1550
    最大轮压
    kN
    610
    680
    710
    340
    荐用大车钢轨
    QU120
    QU120
    电源
    三相交流380v 50Hz
    三相交流380v 50Hz
«1»