首页 >> 产品中心 >> QD型5t

QD型5t

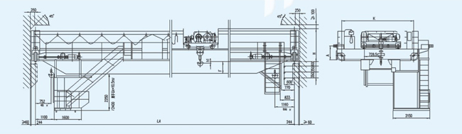
         QD型吊钩桥式起重机广泛适用于加工车间、货场、码头等,进行物料的运输。QD型吊钩桥式起重机,主要有桥架、大车运行机构、小车和电器设备等组成,其工作级别为A5-A6,环境工作温度为-20℃-40℃。本产品为地面操纵和司机操纵。
     
    QD型5t吊钩桥式起重机
     
    QD型吊钩桥式起重机技术参数
     
    工作级别
    A5
    A6
    起重量
    t
    5
    跨度
    m
    10.5
    13.5
    16.5
    19.5
    22.5
    25.5
    28.5
    31.5
    10.5
    13.5
    16.5
    19.5
    22.5
    25.5
    28.5
    31.5
    起升高度
    m
    6、8、10、12、14、16
    速度
    起升
    m/min
    12
    15
    小车运行
    39.5
    39.5
    大车运行
    69
    93
    电动机
    起升
    型号/功率
    YZR160L-6/11kw
    YZR180L-6/15kw
    小车运行
    YZR112M-6/1.5kw
    YZR112M-6/1.5kw
    大车运行
    YZR132M2-6/2×3.7kw
    YZR160M1-6/2×5.5kw
    主要尺寸(mm)
    B
    5100
    5700
    5100
    5700
    K
    3500
    4100
    3500
    4100
    H
    1732
    1735
    1738
    1741
    1746
    1749
    1752
    1755
    1732
    1735
    1738
    1741
    1746
    1749
    1752
    1755
    A
    725
    h1
    96
    94
    96
    94
    F
    26
    176
    246
    326
    476
    676
    776
    926
    26
    176
    246
    326
    476
    676
    776
    926
    最大轮压
    kN
    71
    75
    80
    88
    92
    101
    106
    110
    73
    77
    83
    90
    98
    105
    110
    119
    荐用大车钢轨
    38、43、50kg/m
    电源
    三相交流380V 50HZ