首页 >> 产品中心 >> QC型5t、10t

QC型5t、10t

          QC型电磁桥式起重机惯犯适用于加工车间、货场、码头等,进行金属物料的运输,QC型电磁桥式起重机,主要有桥架,大车运行机构,小车和电气设备等组成。其工作级别为A6~A7,环境工作温度为-20℃-40℃。
          本产品为司机室操纵。
     
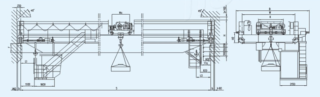
    QC型5t、10t电磁桥式起重机
     
    QC型5t、10t电磁桥式起重机技术参数
     
    起重量
    t
    5
    10
    跨度
    m
    10.5
    13.5
    16.5
    19.5
    22.5
    25.5
    28.5
    31.5
    10.5
    13.5
    16.5
    19.5
    22.5
    25.5
    28.5
    31.5
    起升高度
    m
    16
    工作级别
    A6
    速度
    起升
    m/min
    19.9
    19.4
    小车运行
    39.5
    43.8
    大车运行
    115.6
    116.8
    115.6
    116.8
    12.5
    电动机
    起升
    型号/功率
    YZR200L-6/22kw
    YZR250M1-6/37kw
    小车运行
    YZR112M2-6/1.5kw
    YZR132M1-6/2.2kw
    大车运行
    YZR160M1-6/2×5.5kw
    YZR160M2-6/2×7.5kw
    YZR160M1-6/2×5.5kw
    YZR160M2-6/2×7.5kw
    主要尺寸(mm)
    B
    5390
    5450
    6100
    6040
    6130
    6330
    W
    3600
    3660
    5000
    4250
    4200
    5000
    Wx
    1100
    1500
    b
    230
    K
    1400
    1500
    2000
    H
    1764
    2028
    2026
    2076
    H1
    2526
    2546
    2596
    2756
    2906
    3056
    6206
    3356
    2528
    2548
    2598
    2758
    2908
    3008
    3158
    3308
    H2
    735
    F
    122
    126
    226
    376
    526
    676
    826
    976
    122
    128
    228
    378
    528
    628
    778
    928
    L1
    1250
    1500
    L1
    1500
    最大轮压
    kN
    71
    77
    85
    92
    102
    112
    120
    131
    113
    120
    126
    135
    142
    154
    161
    170
    荐用大车钢轨
    38kg/m
    43kg/m
    电源
    三相交流380v 50Hz
    电磁吸盘
    型号
    MW1-6
    MW1-6
    MW1-6
    吸重
    kg
    4540
    3330
    8330
    自重
    kg
    460
    1670
    1670
    直径
    mm
    776
    1180
    1180