首页 >> 产品中心 >> QD型75/20t

QD型75/20t

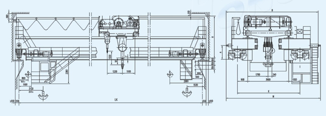
    QD型75/20t吊钩桥式起重机
     
    QD型75/20t吊钩桥式起重机技术参数
     
    工作级别
    A3
    A5
    起重量
    t
    75/20
    跨度
    m
    13.5
    16.5
    19.5
    22.5
    25.5
    28.5
    31.5
    13.5
    16.5
    19.5
    22.5
    25.5
    28.5
    31.5
    起升高度
    m
    10-21
    6-23
    速度
    主起升
    m/min
    1.27
    9.2
    副起升
    9.2
    6.2
    小车运行
    10.3
    35.2
    大车运行
    30.6
    66.7
    电动机
    主起升
    型号/功率
    YZR250M1-8/30kw
    YZR315M-10/75kw
    副起升
    YZR200L-6/22kw
    YZR250M1-8/30kw
    小车运行
    YZR160M1-6/5.5kw
    YZR160L-6/11kw
    大车运行
    YZR180L-8/2×11kw
    YZR180L-6/2×15kw
    YZR180L-6/2×22kw
    主要尺寸(mm)
    B
    8056
    8056
    M
    8293
    8293
    K
    5500
    5500
    H
    3469
    3476
    3481
    3484
    3707
    3716
    3725
    3469
    3476
    3481
    3484
    3707
    3716
    3725
    A
    1200
    1200
    h1
    830
    826
    824
    824
    604
    598
    594
    830
    826
    824
    824
    604
    598
    594
    F
    -10
    -10
    138
    288
    118
    124
    128
    -10
    -10
    138
    288
    118
    124
    128
    最大轮压
    kN
    257
    268
    278
    283
    301
    307
    311
    262
    273
    282
    288
    306
    312
    322
    荐用大车钢轨
    43kg/m、50kg/m、QU80、70×70、80×80、100×100、110×110
    电源
    三相交流380V 50HZ