首页 >> 产品中心 >> QD型32/5t

QD型32/5t

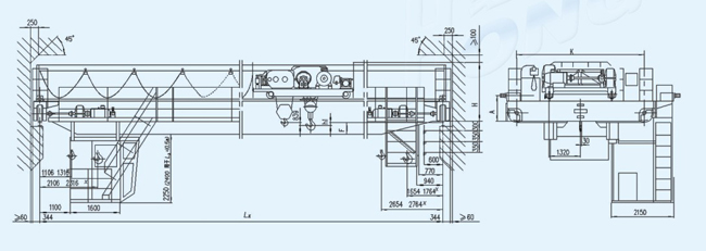
    QD型32/5t吊钩桥式起重机
     
    QD型32/5t吊钩桥式起重机技术参数
     
    工作级别
    A5
    A6
    起重量
    t
    32/5
    跨度
    m
    10.5
    13.5
    16.5
    19.5
    22.5
    25.5
    28.5
    31.5
    10.5
    13.5
    16.5
    19.5
    22.5
    25.5
    28.5
    31.5
    起升高度
    m
    6、8、10、12、14、16、18
    6、10、12、14、16、18、20
    速度
    主起升
    m/min
    9.3
    12
    副起升
    19
    19
    小车运行
    38.2
    38.2
    大车运行
    58
    59
    76
    77
    电动机
    主起升
    型号/功率
    YZR280S-8/45kw
    YZR315S-8/75kw
    副起升
    YZR180L-6/15kw
    YZR180L-6/15kw
    小车运行
    YZR160M1-6/5.5kw
    YZR160M1-6/5.5kw
    大车运行
    YZR160M2-6/2×7.5kw
    YZR160L-6/2×11kw
    YZR160L-6/2×11kw
    YZR180L-6/2×15kw
    主要尺寸(mm)
    B
    7060
    7060
    K
    5200
    5200
    H
    2686
    2689
    2692
    2695
    2698
    2703
    2706
    2713
    2686
    2689
    2692
    2695
    2698
    2703
    2706
    2713
    A
    1011
    1011
    h1
    430
    428
    426
    430
    428
    426
    F
    42
    100
    340
    490
    690
    792
    792
    794
    42
    98
    338
    488
    688
    790
    790
    794
    最大轮压
    kN
    244
    259
    262
    285
    296
    310
    320
    335
    249
    265
    278
    291
    301
    318
    328
    343
    荐用大车钢轨
    38kg/m、43kg/m、50kg/m、70×70、80×80、100×100、110×110
    电源
    三相交流380V 50HZ